
产品概述
KYN28A-12 型(GZS1)户内金属铠装中置移开式开关设备(以下简称开关柜)系三相交流50Hz的户内成套配电装置,用于接受和分配3-12千伏的网络电能并对电路实行控制保护及监测。本产品继电器小室面板上可安装各种类型的微机型综合继电保护装置,并可实现系统的智能化控制,具有遥控、遥测、遥信及遥调功能,通过带有通信接口的CAN总线控制现场网络。并具有防止误操作断路器、防止带负荷推拉手车、防止带电关合接地开关、防止接地开关在接地位置送电和防止误入带电间隔,即简称的“五防”功能。该柜既能配用VSI(即ZN63)、ZN12V真空断路器,也可配置进口的VD4真空断路器与VC系列真空接触器。
使用条件
1, 周围空气温度:上限+40℃,下限一般地区-10℃。
2. 海拔:1000m。
3. 相对温度:日平均值不大于95%,月平均值不大于90%。
水蒸气压力:日平均值不大于2.2KPa,月平均值不大于1.8KPa。
当温度骤降时可能出现凝露,伴随污秽,本产品适用于以下比正常条件更严酷的两种环境条件:
a. 凝露不频繁(每月平均不超过两次)有轻度污秽。
b. 一般不出现凝露(每年平均不超过两次)有较严重污秽。
4. 没有火灾、爆炸危险及严重污秽足以腐蚀金属和破坏绝缘的气体等恶劣场所。
5. 没有剧烈震动、颠簸及垂直倾斜度不超过8°的场所。
基本电气参数


开关柜结构示意图


外形尺寸

开关柜结构
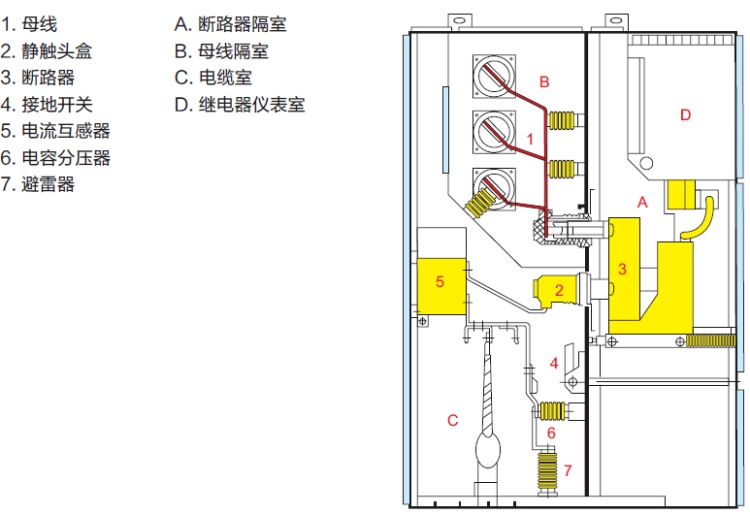
A手车
手车骨架系用薄钢板经CNC机床加工后经铆、焊而成的。根据用途,手车可分为断路器手车、电压互感器手车、隔离手车、计量手车等等,相同规格的手车能方便互换。手车在柜内有隔离位置、试验位置和工作位置,每一位置均设有定位装置,以保证手车处于以上位置时不能随便移动、而移动手车时必需要解除联锁。机械联锁安全、可靠、灵活。
B母线室
母线从一个开关柜引至另一开关柜,通过分支母线和静触头盒固定。扁平的分支母线通过螺栓连接于静触头盒和主母线,不需要任何其它的线夹或绝缘子联接。当用户和工程特殊需要时,母线排上的联接螺栓可用绝缘和端帽封装。在母线穿越开关柜隔板时,用母线套管固定。如果出现内部故障电弧,能限制事故蔓延到邻柜,并能保障母线的机械强度。
C电缆室
电缆室内可安装电流互感器、接地开关、避雷器以及电缆、并在其底部配制开缝的可卸铝板;以确保现场的施工方便。
D继电器仪表室
继电器仪表室用于安装各种继电器、仪表、信号指示、操作开关等元器件。此外可根据用户要求在仪表室顶部增加小母线室,可敷设十六路控制小线线。
泄压装置
在手车室、母线室、电缆室的上方设有泄压装置,当断路器或主母线,电缆室内发生内部故障电弧时,伴随电弧的出现,开关柜内部气压上升,达到一定的压力后,顶部装置的压力释放金属板将被自动打开,释放压力和排泄气体,以确保操作人员和开关柜安全。
锁扣结构
中门与柜体之间的联接采用锁扣结构,并配以提升机构,使中门开启更为方便,当中门处于关闭状态时,其与柜体的联接强度更好,增强了有效抗击内部燃弧故障的能力。

开关柜安装基础示意图


